- 7 Personen - Barrvägen - Skummeslövsstrand - 31272 - Laholm

7 Personen

Übersicht

Objekt Nr.: 172-57100
7 Übernachtungen
Ab EUR 392,-
Wohnfläche 55 m²
Schlafzimmer 2
Badezimmer 1
Entfernung Wasser 800 m
Internet
Nichtraucher
Haustiere 2
  • Kurzurlaub möglich Ja
  • Einkaufen 500 m

Beschreibung

Genießen Sie einen erholsamen Aufenthalt in diesem gemütlichen Ferienhäuschen, nur 800 m von der Küste entfernt im einzigartigen Badeort Skummeslövstrand gelegen. Dieses Ferienhaus bietet eine gute Aufteilung und eine attraktive Lage mit Nähe zu Meer und Natur.

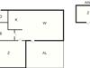
Im Wohnzimmer steht ein bequemes Sofa, das als Schlafgelegenheit für eine Person ausgeklappt werden kann, dazu ein Esstisch, der sich für gemeinsame Mahlzeiten ebenfalls ausklappen lässt. Die offen integrierte Küche ist gut ausgestattet mit Herd, Kaffeemaschine, Mikrowelle und Kühlschrank. Im Abstellraum, an der Rückseite des Hauses, steht zudem ein Gefrierschrank bereit. Das Schlafzimmer verfügt über zwei Etagenbetten mit vier Kojen und daneben befindet sich das Badezimmer mit Toilette und Dusche. Der direkt nebenan liegende, separate Annex bietet außerdem zwei Einzelbetten.

Skummelövsstrand ist ein beliebter Badeort, aber wem das offene Meer zu u unsicher ist, kann zum etwa 1,5 km entfernten Skummeslövsbadet fahren. Dort befindet sich ein 25 m langes beheiztes Meerwasserbecken. Am Pool gibt es auch einen Kiosk mit einfachen Snacks.

Wenn Sie einen Tagesausflug machen möchten, besuchen Sie Svarvareskogen, eine grüne Oase mit zahlreichen Wanderwegen und zwei Übungsrunden. Wenn Sie gerne Tennis spielen, besuchen Sie den Skummeslövs Tennisklubb, eine der größten Tennisanlagen Schwedens. Falls Sie das Abenteuer suchen, sollten Sie zum Abenteuerpark Kungsbygget gehen. Dort gibt es aktive Erlebnisse mit Sommerrodeln, Seilrutschen, Klettern, Radfahren und Bungy-Raketen. Hier gibt es viel zu tun und zu sehen.

1 Wohnz.: (1L)
1 Schlafz.: (4K)
1 Annex: (2B)
Küche: E-Herd, Kühlschr. m. Gefrierfach, Zugang zu Gefrierschr., Mikrow., Kaffeem.
Bad: WC, Waschb., Dusche
Und: E-Heiz., Naturgrundst. 100 m2, Ferienhausgebiet

Schlüsselinformationen
  • Das Ferienhaus steht Ihnen am Anreisetag ab 16:00 Uhr zur Verfügung.
  • Die Schlüsselübergabe findet am Haus statt.

Unsere Gästebewertungen Externe Bewertungen

Keine eigene Gästebewertungen
5,0
Möblierung:
5,0
Empfehlenswert:
5,0
Insgesamt mit Kindern:
5,0
Externe Bewertungen
Keine detaillierten externen Bewertungen

Ausstattung

  • Badezimmer

    • Dusche
    • Waschbecken
    • WC
  • Diverse

    • Anzahl Badezimmer
      1
    • Anzahl Schlafzimmer
      2
    • Baujahr
      1986
    • Haustier erlaubt
    • Nichtraucher
    • Renoviert
      2022
    • Wohnfläche in m²
      55 m²
  • Draußen

    • Bademöglichkeiten (flach)
    • Bademöglichkeiten (Sandstrand)
  • Entfernung

    • Einkauf
      500 m
    • Küste
      800 m
    • Nachbar
      2 m
    • Parken
      3 m
    • Restaurant
      500 m
  • Küche

    • Elektroherd
    • Gefriertruhe
    • Kaffeemaschine
    • Kühlschrank mit Gefrierfach
    • Mikrowelle

Kurzurlaub

Es besteht eine begrenzte Möglichkeit das ganze Jahr einen Kurzurlaub zu machen, typischerweise ausserhalb der Hochsaison.

Preise und Kalender

Kalender

Ankunft
Vorheriger Monat Nächster Monat
  • Juni 2026
    MoDiMiDoFrSaSo
    231234567
    24891011121314
    2515161718192021
    2622232425262728
    272930
    28
  • Juli 2026
    MoDiMiDoFrSaSo
    2712345
    286789101112
    2913141516171819
    3020212223242526
    312728293031
    32
   Verfügbarkeit am ausgewählten Datum prüfen
Frei
Nicht frei
   Ankunft möglich
Dauer

Preis

Zeitraum
Ankunft
Abreise
Dauer
1 Woche
Personen
Bis zu 7 Personen

Bitte beachten

Ankunftszeit wurde nicht ausgewählt.
Vertrags- und Mietbedingungen