Gemütliches Hausboot mit Kamin in Wilhelmshaven
Ferienwohnung - 2 Personen - Wilhelmshaven - 26386
Alternative Objekte
In der Nähe (12)2 Personen
Übersicht
Objekt Nr.: 305-DE2955.621.1
7 Übernachtungen
Ab
EUR 929,-
Inkl. Endreinigung und Versicherung
Das gemütliche Hausboot HT 5 mit Kamin und Terrasse bietet idyllischen Blick auf den Fluss Maade in Wilhelmshaven.
- Kurzurlaub möglich Ja
- Kaminofen Ja
Beschreibung
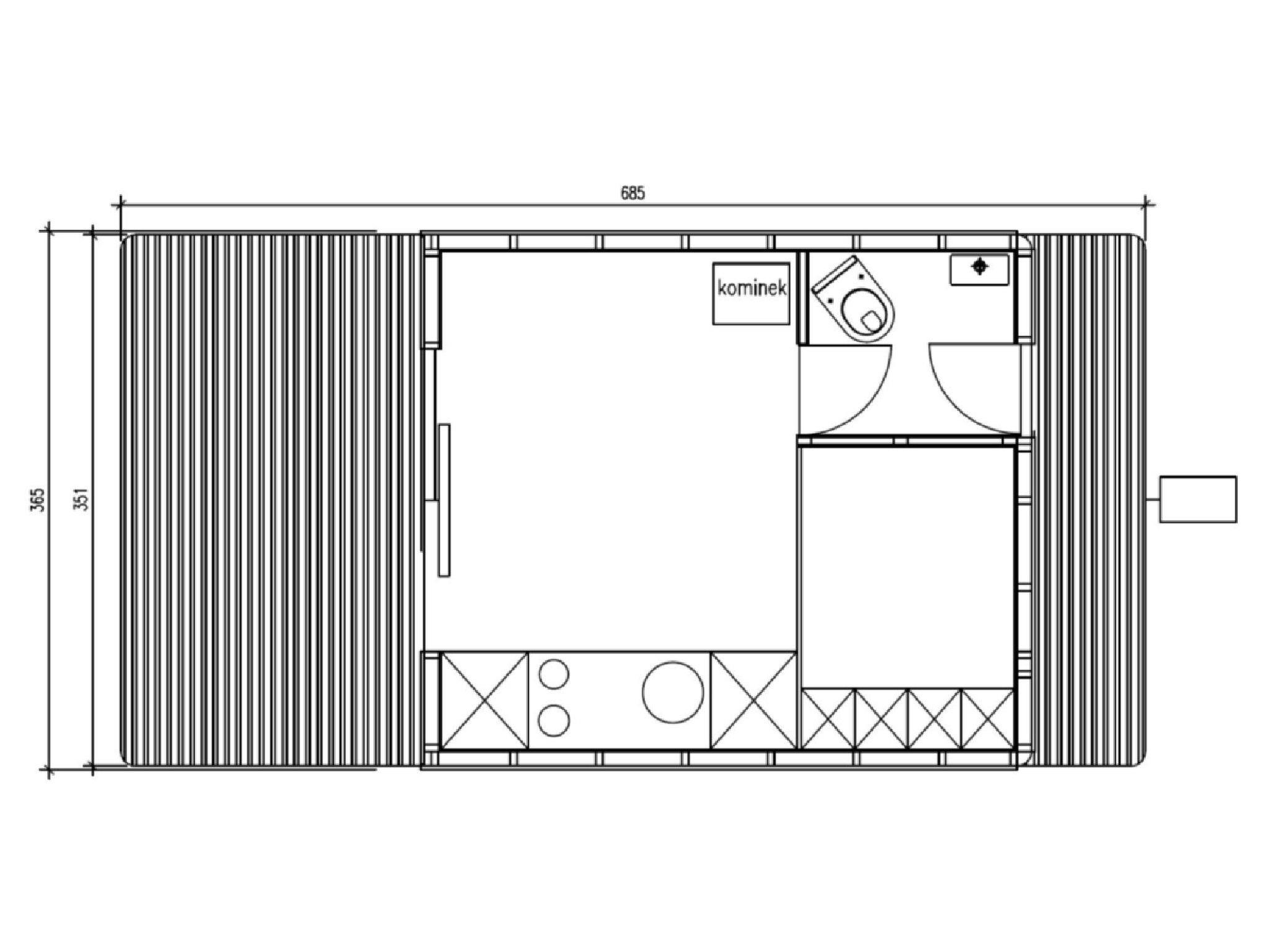
Hausboot HT 5 mit Kamin im Salon, 1 Schlafraum, Küche, Duschbad mit WC / Waschbecken und Terrasse
Das Hausboot HT 5 ist ein stationäres, schwimmendes Haus mit Blick auf den Fluss Maade.
Es ist ruhig gelegen auf dem Wasser im idylischen Sielort Rüstersiel als Stadtteil von Wilhelmshaven.
Die bordeigene Terrasse ist mit Gartenmöbeln für zwei bis vier Personen ausgestattet. Auf der kleineren hinteren Terrasse ist eine Sitzgelegenheit, die zum Verweilen, Angeln oder einfach zum Seele baumeln lassen einlädt.
Das Hausboot ist etwa 20 m² groß und hat folgenden Aufteilung: ein Salon mit Kamin, Couchgarnitur mit Esstisch und Sitzgelegenheit für drei bis vier Personen; Flachbild-Fernseher und Radio. Die Küchenzeile ist mit Induktionskocher, Mikrowelle, Toaster, Wasserkocher, Kühlschrank, Spüle sowie einer Kaffeemaschine komplett ausgestattet. Das Hausboot hat einen abgeteilten Schlafraum mit Doppelbett. Es ist ein separater Badraum mit WC, Waschbecken und Dusche vorhanden. Auf kleinsten Raum finden Sie alles was Sie für einen gemütlichen Aufenthalt benötigt wird.
Das Wasser mit Angelmöglichkeiten befindet sich quasi direkt vor der Haustür. Die Entfernung zum nächsten Sandstrand beträgt ca. 3 Kilometer. Die nächsten Restaurants und ein Bäcker ist nur wenige hundert Meter entfernt. Der nächste Supermarkt mit Tankstelle ist etwa 1,5 Kilometer entfernt.
Bei Bedarf besteht die Möglichkeit im Salon die Sitzgelegenheit als zusätzliche Schlafgelegenheit umgebaut werden.
Basisinformationen
- Anzahl Personen: 2
- Erlaubte Haustiere: keins
- Unterkunftstyp: Mobilheim
- befindet sich in: Anlage
- Wohnfläche: 20 m²
- Grundstücksfläche: 20000 m²
- Baujahr: 2016
- Anbieter wohnt auf dem Grundstück
- Nichtraucherunterkunft
- Badezimmeranzahl: 1
Top Merkmale
- Heizung: überall
- Terrasse
- Private PKW-Stellplätze insgesamt für diese Unterkunft: mehr als 10
- ? davon private Außenstellplätze: mehr als 10
Schlafen
im Wohnbereich
- Doppelbett (von 1,31 m bis 1,50 m Breite)
- Zustellbett
Badezimmer
Badezimmer 1
- Dusche
- Waschbecken
- Toilette
Kochen/Wohnen
- Kaffeemaschine: Filter-Kaffeemaschine
- Kühl-/Gefrierschrank: Kühlschrank
- Herd: Induktionsherd
- Toaster
- Mikrowelle
- Wasserkocher
- Kamin
Entertainment
- Fernseher: TV, Antenne/DVBT-TV
- Musikanlage
- Radio
- CD-Player
Hauswirtschaft
- Staubsauger
Umgebung
- Aussicht: Meer/See
- nächstgelegene Ortsmitte: 1,0 km
- Lebensmittelhandel: 1,5 km
- Bars/Clubs/Ausgehen: 5,0 km
- Cafés/Restaurants: 500 m
- Bahnhof: 5,0 km
- Flughafen: 100,0 km
- Autobahn: 2,0 km
- nächste Haltestelle ÖPNV: 500 m
- Strand: 5,0 km
- Sandstrand: 5,0 km
- Meer: 2,0 km
- Boot inklusive: Ruderboot, Tretboot
- Spielplatz: 300 m
- Reitmöglichkeit: 5,0 km
Besonderheiten
- Hausboot
Grundstücksfläche: 20000m². Baujahr: 2016. Anbieter wohnt auf dem Grundstück.
Das Hausboot HT 5 ist ein stationäres, schwimmendes Haus mit Blick auf den Fluss Maade.
Es ist ruhig gelegen auf dem Wasser im idylischen Sielort Rüstersiel als Stadtteil von Wilhelmshaven.
Die bordeigene Terrasse ist mit Gartenmöbeln für zwei bis vier Personen ausgestattet. Auf der kleineren hinteren Terrasse ist eine Sitzgelegenheit, die zum Verweilen, Angeln oder einfach zum Seele baumeln lassen einlädt.
Das Hausboot ist etwa 20 m² groß und hat folgenden Aufteilung: ein Salon mit Kamin, Couchgarnitur mit Esstisch und Sitzgelegenheit für drei bis vier Personen; Flachbild-Fernseher und Radio. Die Küchenzeile ist mit Induktionskocher, Mikrowelle, Toaster, Wasserkocher, Kühlschrank, Spüle sowie einer Kaffeemaschine komplett ausgestattet. Das Hausboot hat einen abgeteilten Schlafraum mit Doppelbett. Es ist ein separater Badraum mit WC, Waschbecken und Dusche vorhanden. Auf kleinsten Raum finden Sie alles was Sie für einen gemütlichen Aufenthalt benötigt wird.
Das Wasser mit Angelmöglichkeiten befindet sich quasi direkt vor der Haustür. Die Entfernung zum nächsten Sandstrand beträgt ca. 3 Kilometer. Die nächsten Restaurants und ein Bäcker ist nur wenige hundert Meter entfernt. Der nächste Supermarkt mit Tankstelle ist etwa 1,5 Kilometer entfernt.
Bei Bedarf besteht die Möglichkeit im Salon die Sitzgelegenheit als zusätzliche Schlafgelegenheit umgebaut werden.
Basisinformationen
- Anzahl Personen: 2
- Erlaubte Haustiere: keins
- Unterkunftstyp: Mobilheim
- befindet sich in: Anlage
- Wohnfläche: 20 m²
- Grundstücksfläche: 20000 m²
- Baujahr: 2016
- Anbieter wohnt auf dem Grundstück
- Nichtraucherunterkunft
- Badezimmeranzahl: 1
Top Merkmale
- Heizung: überall
- Terrasse
- Private PKW-Stellplätze insgesamt für diese Unterkunft: mehr als 10
- ? davon private Außenstellplätze: mehr als 10
Schlafen
im Wohnbereich
- Doppelbett (von 1,31 m bis 1,50 m Breite)
- Zustellbett
Badezimmer
Badezimmer 1
- Dusche
- Waschbecken
- Toilette
Kochen/Wohnen
- Kaffeemaschine: Filter-Kaffeemaschine
- Kühl-/Gefrierschrank: Kühlschrank
- Herd: Induktionsherd
- Toaster
- Mikrowelle
- Wasserkocher
- Kamin
Entertainment
- Fernseher: TV, Antenne/DVBT-TV
- Musikanlage
- Radio
- CD-Player
Hauswirtschaft
- Staubsauger
Umgebung
- Aussicht: Meer/See
- nächstgelegene Ortsmitte: 1,0 km
- Lebensmittelhandel: 1,5 km
- Bars/Clubs/Ausgehen: 5,0 km
- Cafés/Restaurants: 500 m
- Bahnhof: 5,0 km
- Flughafen: 100,0 km
- Autobahn: 2,0 km
- nächste Haltestelle ÖPNV: 500 m
- Strand: 5,0 km
- Sandstrand: 5,0 km
- Meer: 2,0 km
- Boot inklusive: Ruderboot, Tretboot
- Spielplatz: 300 m
- Reitmöglichkeit: 5,0 km
Besonderheiten
- Hausboot
Grundstücksfläche: 20000m². Baujahr: 2016. Anbieter wohnt auf dem Grundstück.
Unsere Gästebewertungen Externe Bewertungen
Ausstattung
-
Entfernung
-
Flughafen BRE101,3 km
-
Flughafen HAM228,1 km
-
Meer2 km
-
Zentrum1 km
-
Öffentlicher Verkehr500 m
-
-
Hausinfo
-
Anzahl Badezimmer1
-
Anzahl der Zimmer2
-
Bettwäsche kostenlos
-
Dusche
-
Gefrierfach
-
Handtücher kostenlos
-
Heizung
-
Kamin
-
Keine Haustiere erlaubt
-
Kühlschrank
-
Microwelle
-
Nichtraucher
-
Parkplatz bedeckt
-
Reiten
-
Spielplatz
-
Terrasse
-
TV
-
TV international
-
Wohnfläche in m²20 m²
-
-
Thema
-
Sonnenstrand
-
Kurzurlaub
Es besteht eine begrenzte Möglichkeit das ganze Jahr einen Kurzurlaub zu machen, typischerweise ausserhalb der Hochsaison.
Preise und Kalender
Kalender
Dauer
Preis
Zeitraum
- Ankunft
- Abreise
- Dauer
- 1 Woche
Personen
Bis zu 2 Personen
Bitte beachten
Ankunftszeit wurde nicht ausgewählt.