- 4 Personen - Höje - Hagfors - 68495 - Höje

4 Personen

Übersicht

Objekt Nr.: 172-53869
7 Übernachtungen
Ab EUR 692,-
Wohnfläche 75 m²
Schlafzimmer 2
Badezimmer 1
Entfernung Wasser 300 m
Internet
Nichtraucher
Haustiere
  • Kurzurlaub möglich Nein
  • Einkaufen 8 km
  • Waschmaschine Ja

Beschreibung

Erleben Sie die Natur ringsum diesem schönen Ferienhaus!

Wenn Sie bei Vedugnsbakeriet von der Str. 62. abgebogen sind, sind Ruhe und Erholung in der wunderschönen Natur Värmlands nahe. Das letzte Stück bis zum Haus fahren Sie umgeben von Bäumen, bevor das wunderschöne, weiße Ferienhaus erscheint.

Parken Sie vorne oder hinten, es gibt ausreichend Platz. Die Rückseite des Hauses bietet eine große, schöne Rasenfläche für Spiel und Spaß im Sommer. An der Vorderseite hat man einen schönen Ausblick über Wiesen und hinunter zur gemütlichen Steinofenbäckerei mit großzügigen Öffnungszeiten im Sommer.

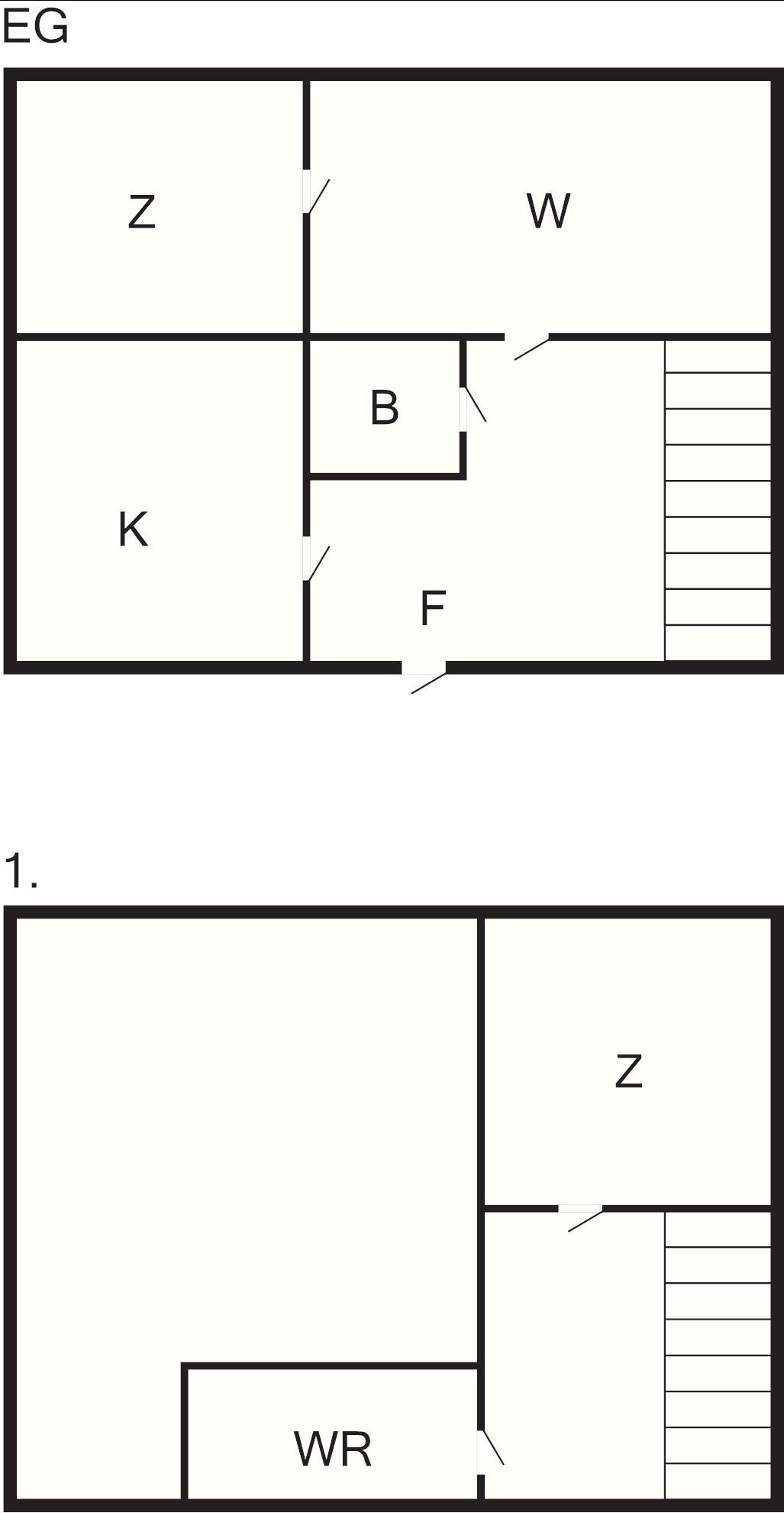
Nachdem Sie den Schlüssel ins Schloss gesteckt und den Flur betreten haben, befinden Sie sich im Herzen des Hauses. Von hier aus erreichen Sie das WC des Hauses, das Obergeschoss, das Wohnzimmer und die Küche. Geradeaus befindet sich das große Wohnzimmer mit Sofa und Sessel. Von hier aus hat man Zugang zum Schlafzimmer mit Doppelbett. Im angrenzenden Raum befindet sich die große, geräumige Küche mit allen Annehmlichkeiten, die Sie zur Selbstverpflegung benötigen. Eine Etage höher liegen das Duschbad mit Waschmaschine sowie das zweite Schlafzimmer des Hauses, mit zwei Einzelbetten.

Der Kachelofen im Haus kann wg. Brandgefahr leider nicht genutzt werden.

Auf dem ehemaligen Hof gibt es 3 Brunnen, bei denen Sie besonders auf die Kinder achten sollten.

Nur 5 Minuten Gehweg zur Steinofenbäckerei. Weitere schöne Ausflugsziele in Reichweite, darunter ein Pfannkuchenhaus in 4 km Entfernung. Nur etwa 3 Autominuten entfernt finden Sie einen Bio-Hofladen (geöffnet ab midsommar).

Sie wohnen auch in der Nähe von Munkfors und Hagfors, Orte mit Läden, Restaurants etc., sowie unweit mehrerer Badestellen.

1 Wohnz.: TV
2 Schlafz.: (2B)+(2B)
Küche: E-Herd, Ofen, Kühl-Gefrier-Kombi, Mikrow.
Bad: WC, Waschb.
1 Waschküche: Waschm., Dusche
Und: E-Heiz., Naturgrundst. 2000 m2, auf dem Lande, Nichtraucherhaus

Schlüsselinformationen
  • Das Ferienhaus steht Ihnen am Anreisetag ab 16:00 Uhr zur Verfügung.
  • Die Schlüsselübergabe findet am Haus statt.

Ausstattung

  • Badezimmer

    • Dusche
    • Waschbecken
    • WC
  • Diverse

    • Anzahl Badezimmer
      1
    • Anzahl Schlafzimmer
      2
    • Baujahr
      1928
    • Nationales Fernsehen
    • Nichtraucher
    • Renoviert
      2022
    • Wohnfläche in m²
      75 m²
  • Draußen

    • Bademögilchkeiten (Badebrücke)
  • Drinnen

    • TV
    • Waschmaschine
  • Entfernung

    • Einkauf
      8 km
    • Golf
      12 km
    • Küste (Strand)
      300 m
    • Nachbar
      50 m
    • Parken
      5 m
    • Restaurant
      8 km
    • See
      300 m
    • Stadt/Ort
      8 km
  • Küche

    • Backofen
    • Elektroherd
    • Kühl-/Gefrierschrank
    • Mikrowelle

Preise und Kalender

Kalender

Ankunft
Vorheriger Monat Nächster Monat
  • April 2026
    MoDiMiDoFrSaSo
    1412345
    156789101112
    1613141516171819
    1720212223242526
    1827282930
    19
  • Mai 2026
    MoDiMiDoFrSaSo
    18123
    1945678910
    2011121314151617
    2118192021222324
    2225262728293031
    23
   Verfügbarkeit am ausgewählten Datum prüfen
Frei
Nicht frei
   Ankunft möglich
Dauer

Preis

Zeitraum
Ankunft
Abreise
Dauer
1 Woche
Personen
Bis zu 4 Personen

Bitte beachten

Ankunftszeit wurde nicht ausgewählt.
Vertrags- und Mietbedingungen