Ferienhaus - 9 Personen - Kemiönsaari - 25940

9 Personen

Übersicht

Objekt Nr.: 319-FI2800.624.1
7 Übernachtungen
Ab EUR 1.866,-
Inkl. Endreinigung und Versicherung
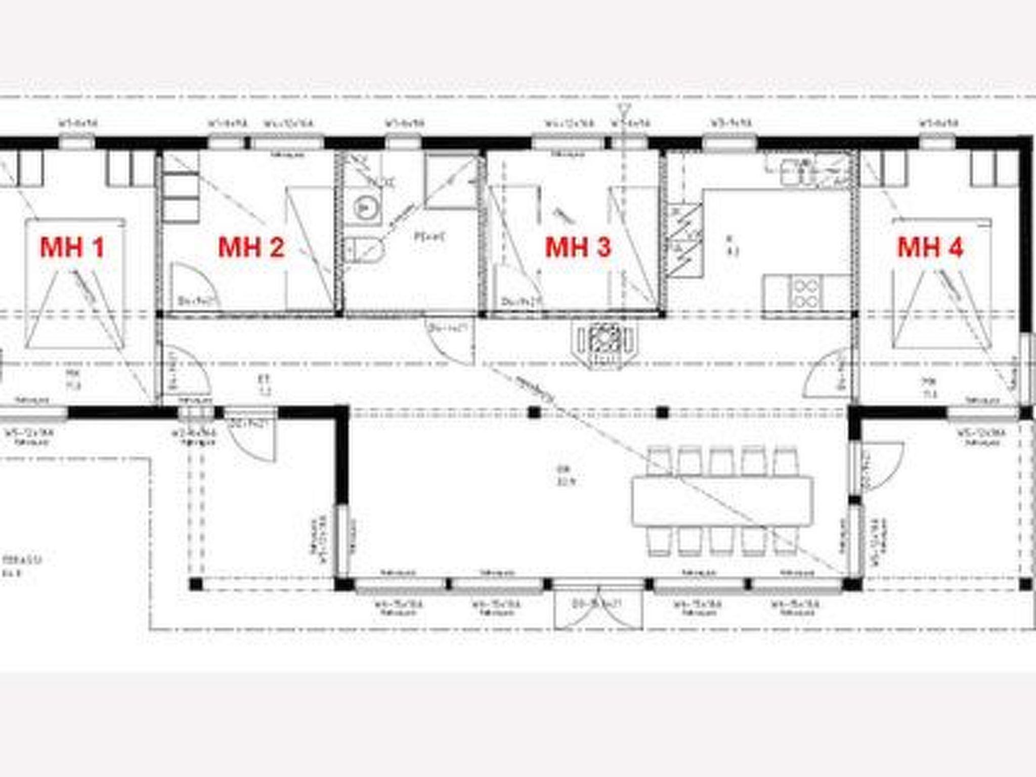
Wohnfläche 105 m²
Schlafzimmer 4
Badezimmer 1
Entfernung Wasser 50 m
Internet
Nichtraucher
Haustiere
  • Kurzurlaub möglich Ja
  • Sauna Ja
  • Waschmaschine Ja
  • Geschirrspüler Ja

Beschreibung

Von Helsinki 200 km westlich, Archipelmeer / Hiittinen / Norrfjärden 50 m, flacher, fester und leicht vertiefter Kies-/Steinboden (ohne Steg), eigenes Ruderboot. Stämmiges Blockhaus, Baujahr 2017, Küche und geräumiges Wohnzimmer, 2 Schlafzimmer mit je 1 Doppelbett, Schlafzimmer mit 2 getrennten Betten, Schlafzimmer mit Etagenbett (oberes Bett nur für Kinder geeignet), Waschraum (Toilette und Dusche), Vorraum, breite Terrasse. Das Blockhaus verfügt über Fussbodenheizung und Luftwärmepumpe (auch zum Kühlen). Das Leitungswasser enthält Meerwasser und ist nicht trinkbar. Der Hausmeister bringt Trinkwasser. In der Strandsauna ist Holzofen. Ankleideraum (Schlafsofa für 2). Im Ankleidezimmer befindet sich elektrischer Heizkörper und elektrisches Licht (durch Verlängerungskabel vom Hauptgebäude). Stämmiges Blockhaus im Archipel von Hiittinen, umgeben von festem Felsen, mit ruhigem Grundstück in einer eigenen Bucht. Es gibt keine Anlegestelle, Angeln ist vom Strand mit Angelrute möglich. Der Besitzer vermietet Aussenborder (PS). Angeltouren gegen Aufpreis. Kaffeemaschine, Wasserkocher und Toaster in der Küche. Der Archipel von Hiittinen ist berühmt für seine wunderschöne Natur. Auf der Insel gibt es zwei Lebensmittelgeschäfte, zwei Sommerrestaurants und Cafés, Tankstelle und Gästehafen. Fähre nach Hiittinen M/S Aurora mehrmals täglich, Fahrzeit ca. 25 Minuten. Sonntags fährt die letzte Fähre nach Kasnäs um 18:30 Uhr! Dorf Hiittinen 3 km, Rosala (Wikingerzentrum und Hafen) 10 km, Kasnäs (Fähre 30 Minuten, zum Beispiel Kur- und Seefahrten zur Leuchtturminsel Bengtskär und zur Festungsinsel Örö) 10 km, Kemiö kk 40 km, Skigebiet und Golfzentrum von Meri-Teijo 60 km, Salo 80 km.

Unsere Gästebewertungen Externe Bewertungen

Keine eigene Gästebewertungen
4,0
Insgesamt:
4,0
Externe Bewertungen
Keine detaillierten externen Bewertungen

Ausstattung

  • Entfernung

    • See
      50 m
    • Wasser
      50 m
    • Zentrum
      35 km
    • Öffentlicher Verkehr
      15 km
  • Hausinfo

    • Anzahl Badezimmer
      1
    • Anzahl der Zimmer
      5
    • Anzahl Schlafzimmer
      4
    • Bettwäsche kostenlos
    • Handtücher kostenlos
    • Internet
    • Keine Haustiere erlaubt
    • Kühlschrank
    • Microwelle
    • Natur
    • Nichtraucher
    • Ruhe und Entspannung im Sommer
    • Sauna
    • Spülmaschine
    • TV
    • Waschmaschine
    • WLAN
    • Wohnfläche in m²
      105 m²

Kurzurlaub

Sie haben das ganze Jahr die Möglichkeit einen Kurzurlaub zu machen.

Preise und Kalender

Kalender

Ankunft
Nächster Monat
   Verfügbarkeit am ausgewählten Datum prüfen
Frei
Nicht frei
   Ankunft möglich
Dauer

Preis

Zeitraum
Ankunft
Abreise
Dauer
1 Woche
Personen
Bis zu 9 Personen

Bitte beachten

Ankunftszeit wurde nicht ausgewählt.
Vertrags- und Mietbedingungen